1 展商參展概況
第二十八屆中國國際專業音響、燈光及技術展覽會(音響·燈光展)(以下簡稱“PALM EXPO 2019”)于8月10日至12日在北京國家會議中心舉辦。參展的舞臺機械廠商有:浙江大豐實業股份有限公司(以下簡稱“大豐”)、北京北特圣迪科技發展有限公司(以下簡稱“北特圣迪”)、北京東方高科舞臺科技有限公司(以下簡稱“東方高科”)、甘肅工大舞臺技術工程有限公司(以下簡稱“工大舞臺”)、江蘇時代演藝設備有限公司(以下簡稱“時代舞臺”)、江蘇中惠舞臺設備技術有限公司(以下簡稱“中惠舞臺”)、北京泊斯迪尼舞臺工程技術有限公司、北京長征天民高科技有限公司(以下簡稱“長征天民”)、泰州星海舞臺設備工程有限公司、江蘇金銀杏舞臺設備有限公司(以下簡稱“金銀杏舞臺”)、江蘇美藝舞臺設備工程有限公司、江蘇中邦智能科技有限公司、江蘇建聲影視設備研制有限公司(以下簡稱“建聲影視”)、北京星光影視設備科技股份有限公司、佑圖物理應用科技發展(武漢)有限公司、焦作市晟光影視設備有限責任公司。以產品配套為主的生產商有河北伊特舞臺機械設備制造有限公司、石家莊首域傳動科技有限公司(以下簡稱“首域”)、江蘇美事科電機制造有限公司、上海丹馬電機技術有限公司、諾德(中國)傳動設備有限公司;以電動葫蘆等起重設備為主的廠商有河北懷鴿起重機械集團有限公司、捷仕起重機械(上海)有限公司、牧德科技(北京)有限公司、北京北起雄鷹起重吊索具有限公司等。首次參加PALM展的有成都炎興自動化工程有限公司(以下簡稱“成都炎興”)、北京光順數控技術有限公司。另外,瓦格納-比羅公司、德國霍阿克(HOAC)焊接技術有限責任公司(以下簡稱“霍阿克”)和韓國Haon atec 舞臺技術公司也出現在本次展會。
PALM EXPO 2019的舞臺機械參展商在所有參展商中的占比較往屆有所提高。參展商多以視頻播放、展板的圖文資料介紹為主,結合部分靜態產品樣機或模型,動態演示的產品數量同前兩年相比明顯減少。
2 主要展品及技術介紹
2.1 浙江大豐實業股份有限公司
大豐展出的有STACON舞臺集成控制臺和OXAS3軸控制器。STACON集成控制臺具有如下主要特點。
分體式、模塊化設計。可根據現場實際情況,安裝具備不同功能的各類模塊,以滿足用戶的不同需求:硬件方面,可根據需求,配置不同功能的操作手柄,如滾輪式、手柄式等,也可根據需求擴展為多屏顯示(最多可擴充到5組顯示器);軟件方面,可選取舞臺機械設備控制軟件,燈光、音響、機械一體化集中控制軟件,環境安全數據檢測等各種不同功能模塊的組合,以滿足用戶的不同需求(見圖1)。

人性化的控制面板:主操作手柄采取滾輪式速度調節器+液晶顯示按鈕的方式,提供方便直接的操作手段;提供簡易式功能鍵盤,支持設備的快速選取和參數編輯;主顯示器支持多點觸控,人機界面的操作更為便捷。
支持單場景、多場景、場景+臨時設備等多種模式的設備運行方式;支持安全編組、固定編組、自由編組等靈活多變的設備編組方式。
此外,大豐還展示了按照杭州西溪濕地洪園的互動裝置“西溪詩話”項目等比例縮小的3D Mapping投影技術和一款基于將虛擬信息與真實世界融合的增強現實技術的作品。
2.2 北京北特圣迪科技發展有限公司
2.2.1 徒手拖曳編繪雙3D飛行表演軌跡裝置
3D四軸飛行器的空間飛行軌跡的編繪是一項重要的工作,第一代飛行軌跡的編繪是由軟件編制專業人員采用幾何圖形函數相連接的方式編繪,空間飛行軌跡是由直線、圓、橢圓等的直線段和弧線段相連接組成,軌跡
曲線不可任意。
隨著技術的進步,第二代3D空間飛行軌跡采用在觸摸屏上徒手繪制(手繪)的方式,手繪的軌跡曲線將通過計算機軟件離散處理后的移動點三維(X、Y、Z)坐標及速度值(U)數據編碼組集合按序列下載到數字控制器處理,經數字控制器計算控制伺服系統驅動吊點做3D空間機械運動,手繪創造了空間軌跡的繪制任意性,取得了很大的進步,但是手繪的方法仍需要學習和實踐。
近年來,隨著3D四軸飛行器在旅游演藝類表演中的應用越來越多,節目創意要求飛行器在演出空間能沿著任意曲線軌跡進行表演,如何讓非技術專業的藝術人員能夠快速編繪任意空間軌跡呢?在這種背景下一種全新的第三代編繪方式——徒手拖曳快速編繪裝置應運而生。
徒手拖曳快速編繪裝置是在按比例縮小的表演空間模型上進行的,徒手拖曳四繩中心結點可在有效空間內任意徒手拖曳,在實際運行空間內同步運行并按比例放大還原徒手拖曳的軌跡曲線,軌跡曲線可進行多次修改,并實時存儲記憶,存儲記憶的曲線在運行中可實時調整運行速度,并實時存儲記憶,系統可記憶多條運行曲線。
徒手拖曳快速編繪方式的特點:
徒手拖曳不需要進行學習;
快速直觀,效果立現;
適用于需要經常變換運行軌跡的演出;
非常容易解決雙運行軌跡之間的干涉問題。
徒手拖曳快速編繪方式特別適用于多變曲線和在雙3D空間的運行軌跡,由于雙四繩運行時的相互干涉,目前,上述第一代和第二代編繪方式難以避免雙四繩相互干涉,徒手拖曳的方式能很容易解決這個問題,只要兩套拖曳裝置的八根吊繩在人眼觀察下不干涉就可達到編繪目的,徒手拖曳快速編繪3D空間運行軌跡在多軸數控飛行器中得以實現。
新的創意理念及實現必將大大推動演藝行業廣泛應用和長足發展。
2.2.2 3D控制系統及虛擬劇場編場功能
3D控制系統是在傳統控制臺的數據界面基礎上增加觸摸屏,通過3D仿真劇場能更直觀立體地表現出設備在3D空間中操作后的運行狀態和相對其他設備的位置,讓操作人員心里有數。
虛擬劇場編場功能則提供了一種新的編場方式,通過在3D仿真劇場里對設備進行編場,直到走場效果達到導演設想中的效果,然后把編場文件導入控制系統,再操作機械設備進行走場驗證,可以有效減少現場設備的編場次數,節省人力、物力成本。
運行參數里可以對設備的位置、速度、延時進行設置,曲線運動可以讓設備在一場表演中在指定的時間軸上以多個不同的速度運行到多個不同的位置。
2.2.3 動態雕塑系統
動態雕塑系統由微型吊機和控制系統組成。吊機的吊線采用專門開發的抗拉電纜,抗拉強度為0.5 kN,纜徑僅4 mm,通過該電纜可讓懸吊的小球或其他造型的懸吊物實現自發光及明暗和色彩的變化?刂葡到y采用管理層、控制層、執行層三層結構,各層之間采用EtherCAT通信,保證系統中的所有設備能夠達到精確的時鐘同步,實現實時的控制效果。
2.2.4 其他設備
除了上述設備以外,北特圣迪還介紹了專門為演藝秀場節目劇情需要開發的設備,如可以實現升降、旋轉、橫向顛簸和縱向搖擺、甲板傾斜等運動的四動作機械大船、數控動態升降柱、集成了洪水特效系統的洪水車臺、高速軌道飛行器、多功能傾斜旋轉升降臺等。
2.3 北京東方高科舞臺科技有限公司
2.3.1 基于虛擬樣機技術的多自由度虛鉸翻板設備
基于虛擬樣機技術的多自由度虛鉸翻板設備包括機架、橫梁、立柱和翻板,如圖2所示,可滑動的橫梁安裝在兩個機架之間,并通過升降驅動機構驅動,橫梁在升降驅動機構的驅動下沿豎直方向移動;滑動的橫梁上安裝有一立柱,該立柱通過平移驅動機構驅動,立柱在平移驅動機構的驅動下沿水平方向移動;翻板安裝在立柱的頂部,并通過旋轉驅動機構驅動。

技術特點:
采用三自由度機械系統,構成正反兩面翻轉較大角度的虛鉸機構,可以更好地實現創意要求;
將現有的三維設計、有限元分析、動力學仿真的聯合仿真技術應用到翻板的設計過程中,通過虛擬樣機進行性
仿真和優化設計,對提高設計質量、縮短產品開發周期有重要的現實意義。
2.3.2 升降臺機械同步軸系統
升降臺機械同步軸系統如圖3所示,由4組驅動單元組成,每一驅動單元的結構相同,均包括電機、多級減速器、聯軸器和剛性鏈,電機的輸出軸與第一級減速器的輸入端傳動連接,電機的輸出軸通過制動器制動。

技術特點:
4組驅動單元對稱布置,相互之間用聯軸器剛性連接,建立同步軸系統實現機械同步;
如果一臺電機失效、其余電機能夠驅動升降臺繼續運行,此時,電機功率按一臺電機失效、其余電機在不過載
條件下可繼續完成升降臺的本次運行的原則確定;
可以避免臺體傾斜,保證臺體在一臺電動機故障時到達對接位置,避免臺體長時間懸吊在半空中。
2.3.3 雙向連桿機構振動平臺
雙向連桿機構振動平臺的臺體下部的中央設有左右相互鉸接的水平連桿(見圖4),這兩個水平連桿的鉸接點的前方設有復位螺旋升降機,后方設有觸發螺旋升降機;振動平臺的臺體下部的左右兩側分別安裝有一套升降機構,每套升降機構均由位于四角的4個豎直連桿以及將4個豎直連桿的下部連接在一起的連桿連接架組成,連桿連接架通過連桿與位于同側的水平連桿鉸接;每個豎直連桿的底部安裝有滾輪;滾輪可沿導軌左右滑動。

技術特點:
具有慢速上升(復位)和快速下降(觸發)兩個動作,每個動作由一套螺旋升降機(也可用液壓缸或電動推桿來代替)來驅動;
具有自身高度低、行程短、動作快、復位慢等特點,主要用于承載觀眾,在特定情景中配合燈光、音響及霧效等特效瞬間動作,自由落體下降,給觀眾一種逼近真實的地震感覺;
通過雙向連桿機構多次轉化,使得驅動力大大降低,也就降低了驅動裝置機座號,壓縮了驅動裝置空間,節省了驅動功率,更加經濟可靠;
通過雙向連桿機構的轉換將水平方向的平移動作轉換成垂直方向的升降動作,大大節省了空間,并且僅用一套復位驅動和一套觸發驅動裝置就能夠實現升和降兩個動作,節省了電機數量,具備更好的經濟性和可維護性;
利用連桿過死點能瞬間動作原理來實現自由落體動作,克服了傳統振動平臺需要利用液壓缸等驅動單元的快速反應特性來達到快速降落功能的弊端,使得驅動更加簡潔高效。
2.3.4 無供電式三自由度雙點飛行器
無供電式三自由度雙點飛行器包括驅動裝置以及小車,如圖5所示。驅動裝置包括旋轉卷揚機,旋轉卷揚機為電動驅動。小車的底部安裝有齒輪,齒輪與齒條嚙合;齒條的兩側安裝有動滑輪,齒條通過封閉式循環鋼絲繩依次穿過動滑輪、水平滑輪和豎直滑輪,與旋轉卷揚機相連;齒輪的底部固定連接有雙吊點裝置。

技術特點:
可以實現升降、行走和旋轉三個動作,讓演員在空中展示的動作更加豐富多彩;
驅動裝置均固定于馬道上方,小車上沒有驅動裝置,故小車上無需裝載供電系統,減輕了小車負載,使小車承
能力更強,同時可以避免使用滑觸線及移動電纜等移動供電裝置,大大降低了成本,這樣經濟性和使用性更高,結構更加簡潔;
旋轉動作采用雙側動滑輪方案為本套設備最大創新點,使旋轉驅動裝置從小車上移到了設備馬道上,解決了傳統飛行機構只要有旋轉動作就必須在小車上裝載驅動單元的弊端,同時動滑輪具備隨動特點,旋轉動作和行走動作互不干涉,旋轉電機與行走電機無須同步,兩者可以獨立控制,使得控制系統更加簡便;
采用位置可調節的拖輪裝置,布繩合理緊湊,節省了小車的空間。
2.4甘肅工大舞臺技術工程有限公司
工大舞臺的展臺面積達到216 ㎡,為歷年之最,展臺的設計也獨辟蹊徑,突出體現了甘肅文化特色,把甘肅文化中的突出代表——敦煌莫高窟元素、大地灣彩陶文化呈現給廣大觀眾,有耳目一新的直觀感受(見圖6)。工大舞臺展出了3D四軸空間威亞系統、軌道飛行器以及平移、升降、旋轉吊掛系統等三項產品,體現了工大舞臺近幾年在技術研發上的成果。

2.5 成都炎興自動化工程有限公司
成都炎興是一家年輕的企業,專注于演藝行業機械設備控制領域,產品和服務主要集中在劇場、室外實景演出和室內秀場、流動演出三個領域。展出的產品有軸控制器和適用于不同場合的控制臺。
極光Pro全功能舞臺機械控制臺,主要特點有:內置DMX512通信接口,使其能接收燈光控制臺的指令;配置3D鼠標,在3D建模界面操作更加直觀;配置了2塊快捷功能區,可以快捷編程、設定位置、調用場景、切換場景、保存參數等;1路手動備份操作,可在計算機失效時通過手動備份裝置實現備份操作功能。
ZNK緊湊型控制臺和極光專業舞臺機械控制臺都適用于既有復雜運動控制同時又對設備便攜性有要求的場合。前者內置了DMX512通信接口,能接收燈光控制臺的指令,有2路手動備份操作裝置,可在計算機失效時實現手動備份操作功能,在開關失效時應急啟動設備達到救場的目的;后者通過全向搖桿和定向搖桿的組合使用,可實現設備的三維運動。
針對流動演出專門開發的IAC變頻電動葫蘆控制系統,由軸控制器、稱重傳感器、電源分配箱、主控制器等構成,將驅動單元與控制單元集成為一體,能方便地對整個系統進行控制。
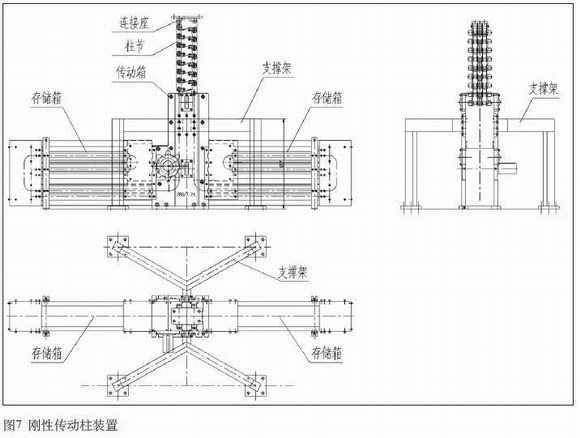
2.6 石家莊首域傳動科技有限公司
首域介紹了新研制的剛性傳動柱裝置,其結合了柔性轉動柱和拉鏈機構的拉起和解開技術,在沒有導向的情況下可直接頂起載荷,可承受規定的任何方向的水平載荷。
剛性柱由帶導向的傳動箱、柱節、存儲箱、支撐架組成,如圖7所示。傳動箱內設有特殊導向,能夠讓柱節之間順利解開或嚙合,柱節解開兩半后是非常柔軟的,一旦咬合后立即形成剛度很大的具備抗彎能力的柱子;柱節由特殊形狀的板材通過互相咬合而成,柱節中的連接軸既是傳動軸,又是導向滾輪的連接軸,如圖8所示。存儲箱分單層、雙層、三層、四層、五層,主要讓剛性柱收起時按規律存放在存儲箱內。支撐柱主要用于剛性柱防傾翻,隨著行程加大,支撐架需要與地基牢固地連接,或者可做成起重機可伸縮或旋轉的支腿一樣,加大支點位置。


2.7北京長征天民高科技有限公司
長征天民呈現的是可折疊觀眾席和包括升降臺、車臺、轉臺等模塊化的舞臺設備。所有模塊化舞臺按照一定模數制造,可以任意組合,形成多個模塊變化多端的型式;與伸縮式座椅相比,折疊觀眾席可以運到庫房儲存、可以搬運到其他房間或者室外使用;在同一個房間內舞臺模式改變時,折疊式觀眾席可以改變角度擺放,讓多功能廳實現真正的多功能。通過模塊化舞臺和可折疊式觀眾席的配合使用和組合可以實現不同的觀演形式的變換,在已有建筑條件下滿足廳堂多用途的功能要求。
2.8其他企業產品
2.8.1 中國的其他幾家舞臺機械企業
中惠舞臺展出了流動式自排繩卷揚機、輕便式自排繩卷揚機、多功能自排繩卷揚機等幾種不同形式,適用于不同場合的自排繩類卷揚機以及可以實現升降、旋轉、搖擺等動作組合的吊機。
金銀杏舞臺、時代舞臺、建聲影視等企業也都展示了各自不同的舞臺卷揚機實物樣品。
2.8.2 德國霍阿克(HOAC)焊接技術有限責任公司
霍阿克介紹了他們的鋁合金拼裝式轉臺,在需要時手動將這些模塊拼裝成一個完整的轉臺,演出結束后拆開便于存放,不占用舞臺空間。同以前展出的可自由運行的車臺一樣,均符合DIN EN 729-2、 DIN 18800、DIN4113等標準,自重較輕,但承受動載可達2.5 kN/㎡、靜載可達5.0 kN/㎡,可以像搭積木一樣便捷且不受環境限制,在現有條件下可以搭建成異形舞臺、看臺的鋁合金框架。
2.8.3 廣州彩熠燈光股份有限公司
值得一提的是,廣州彩熠燈光股份有限公司作為舞臺燈光制造企業,也準備進軍舞臺機械控制領域,著手研發舞臺機械控制產品。雖然在本次PALM展上沒有樣品展示,但據該公司的高層介紹,已經進入樣機測試驗證階段,將于2020年亮相。據該公司的技術人員介紹,研制的產品包括舞臺機械控制臺和軸控制器。
(1)舞臺機械控制臺的技術特點
具有自主知識產權的以太網組件控制協議,具備網絡拓撲結構及設備自動發現功能,實時控制幀率最高支持10 kHz,可對該公司的軸控制器進行控制;
基于3D空間的對象編程與多軸聯控,操作直觀而且便捷;
基于運動過程的精細控制,持續輸出高階多項式插補系數,確保各軸位置誤差實時可控;
支持機械、燈光等多種舞臺元素的3D模擬仿真,效果細膩,同時還支持空間干涉的仿真檢測;
支持網絡分布式計算與聯機熱備份,保證控制系統的可擴展性和穩定性;
支持機械、燈光的聯機仿真、編程及控制, 通過網絡與TEKMAND系列燈光控制產品無縫對接,打破聲光視械等不同控制領域的限制;
除配備急停開關、安全按鈕、復位鎖等物理安全保障外,還從通信、系統、流程、權限等角度采取多項策略,確保控制系統的安全:可在10 ms內觸發通信超時異常,確保所有設備安全停機;定制工業級應用的操作系統,確保實時性、可靠性;內置工作強度等業務規則的監控;關鍵操作需要相應的用戶權限多步驟確認。
可以滿足多元化、動態化的舞美造型的應用需求,提供安全、穩定的舞臺機械控制。
(2)軸控制器的技術特點
軸控制集功率驅動與運動控制單元于一體,主要滿足高性能變速驅動的需求。
支持自主知識產權的以太網組件控制協議,菊花鏈拓撲形式連接,控制指令執行及設備狀態報告的延遲均低于0.1 ms;
位置控制指令采用高階多項式表達,支持插補輸出,確保位置、速度、加速度的連續無突變;
支持矢量運動控制算法,可進行高精度位置控制,動態力矩響應快;
功率驅動單元采用高效率半導體器件,控制支持四象限運行,用電效率較高;
全單元采用多個邏輯主控器件進行協作及冗余控制,指令響應時間低于0.1 ms,異常處理時間低于100 ms,安全性較高;
支持多種信號及物理量的異常檢測與處理:除了支持軟件限位、開關限位以及機械限位之外,還監控了載荷、溫度、電壓、電流、位置、速度,甚至控制器空間姿態、工作時長等多個物理量;
采取冗余及守望的策略確保系統安全:主電源需要單元內多個主控器件協同分步驟控制導通,控制器單元內或者控制器與控制臺之間任一環節的通信及數據異常均可有效觸發斷電停車邏輯;
制定流程及權限的策略確保操作安全:將狀態查看、配置維護、運行輸出、異常處理等劃分入不同的操作權限,且各操作需要執行相應的流程,有效控制用戶操作失誤的風險。
3 小結
從PALM EXPO 2019上展示的產品和技術來看,呈現如下特點。
傳統意義上的常規劇場的舞臺機械產品沒有明顯的變化,反映出需求趨于成熟穩定,但各個廠商產品在產品的細節方面,如外觀設計、加工質量、安全設施等方面還是有所提高。此外,針對不同應用條件,出現了產品細分的特點。
隨著各地文旅類項目的蓬勃發展,為各種實景演出、室內外秀場演出、主題劇場演出量身定做的舞臺機械設備逐漸成為研發的主流,這些設備呈現載荷大、速度快、動作復雜、使用頻率高、控制精度要求高、多為異形結構、使用環境條件更為復雜等特點,對設計手段、材料、工藝、產品的研發提出了新的要求,促進了技術的創新發展,同時也對設備的安全性、可靠性研究提出了新的課題。
文化和旅游的融合發展,極大地提高了觀眾的欣賞水平,為了豐富演出的藝術效果、增加節目的藝術感染力,舞臺機械和舞臺燈光、音響、視頻裝備技術以及水霧煙氣火等特效技術的融合發展也逐漸成為一種趨勢,這在不少產品的研發中已經得到體現。
|